Описание
Характеристики
Отзывы
Описание
Эффективное отопление дома площадью до 140 кв.м легко обеспечивается котлом «Куппер Практик-14» от производителя «Теплодар». Удобная варочная поверхность позволяет готовить вкуснейшие блюда прямо у себя дома! Модель выполнена из прочной стали толщиной 3 мм, оснащена удобным задним выходом дымохода диаметром 115 мм. Возможна установка электрического ТЭНа мощностью 3–6 кВт и выбор удобного варианта автоматизации процесса горения — регулятор тяги либо вентилятор+пульт дистанционного управления. Удобно, практично и надежно!
Характеристики
Производитель
ТЕПЛОДАР
Вид топлива
Уголь,
Дрова
Мощность кВт
14
Отапливаемая площадь м2.
140
Материал
Сталь
Толщина материала мм.
3
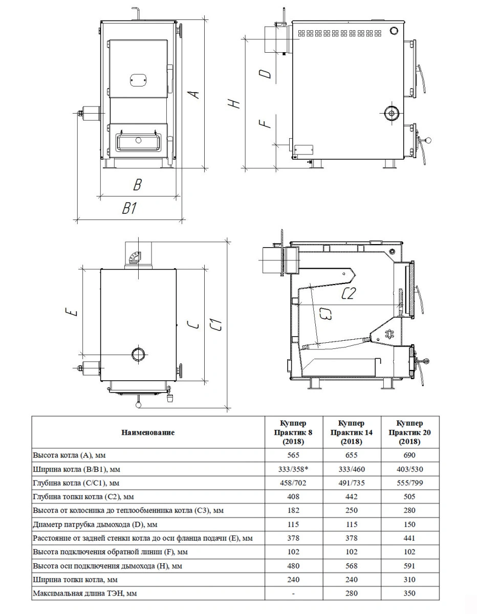
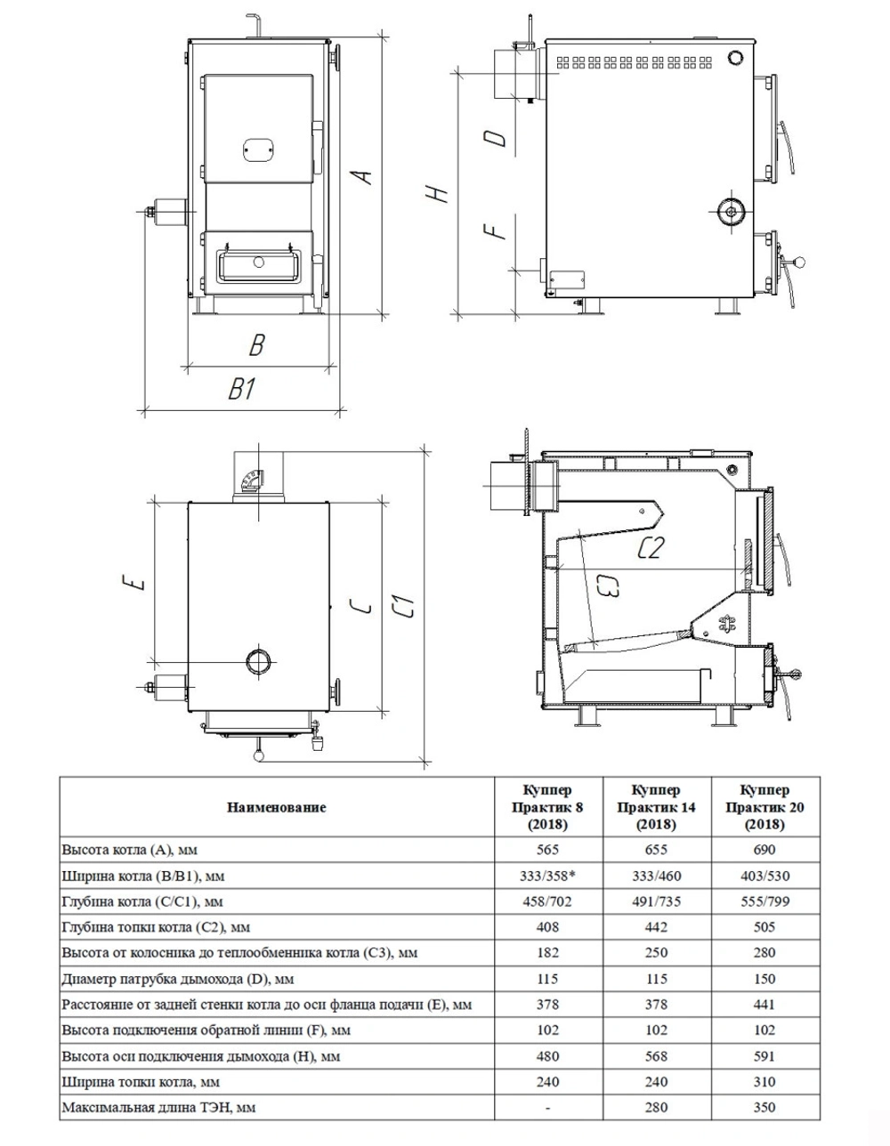
Диаметр дымохода мм.
115
Варочная плита
Нет
Высота мм.
655
Ширина мм.
333
Глубина мм.
735
Вес кг.
80
Выход дымохода
Сзади
Объем теплоносителя л.
32
Объем топки л.
40
Глубина топки мм.
440
Возможность установки ТЭНа кВт.
3,
6
Варианты автоматики
Регулятор тяги,
Вентилятор/Пульт,
Пульт для ТЭНов
Отзывы
Отзывов еще никто не оставлял
Сопутствующие товары
